【AD】AutoDraft-三维智能出图软件
- 2023-05-15 09:23:11
- 小编 原创
AutoDraft-三维智能出图软件
1.产品背景
目前,工程设计单位在工厂详细设计阶段时,采用传统方式出图花费大量时间,标注叠加难以处理,一般设计人员很难使用Draft模块完成出图工作,无法做到所见所得的设计思路,会有平面图纸不准确的情况存在。
研发团队基于SHT 3052-2014和SY/T0003-2012制图标准,详细分析了专业出图的特点,精细打造出Auto Draft for PDMS (简称AD出图)软件到市场中,得到用户的众多好评。
在众多工程师在项目中使用AD出图软件,软件的使用方式和软件效率得到了很高的评价,软件也提升了详细设计的质量,减少相关施工变更问题,提升工程公司核心竞争力。
2. 功能与特点
AD出图软件是基于PDMS/E3D和Draft模块开发的软件,开发语言是基于PML和C++环境开发的,软件在Design模块创建图纸快速便捷,软件对每个模型标注都进行细致处理,出图效率极其高,保障每张图能在很快的速度中快速生成。
2.1 一键切换中英文
软件一键可以切换英文界面,方便海内外软件用户使用,满足海外项目的出图需求

2.2 开放的出图样式,新增图纸样式方便

软件使用可见的出图样式定义,尺寸标注可以根据顺序在图纸中标注。
2.3 一键高效生成平面布置图
AD出图可以直接生成管道布置图,管口方位图,仪表条件图,孔洞条件图,并存储为DXF文件格式文件。

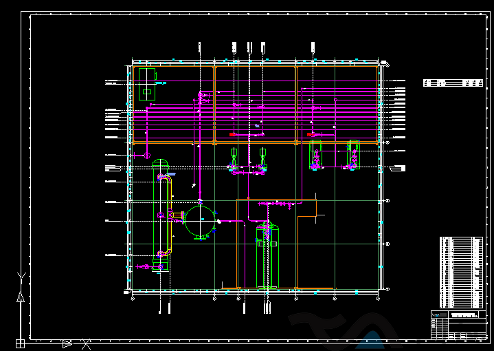
管道布置图样图1

管道布置图样图2
3. 运行环境
AD软件可以用于PDMS11.6、PDMS12.0、PDMS12.1、Everything3D 版本软件平台;
系统支持 WINXP WIN7 WIN10;
不依赖CAD软件平台生成图纸,支持更多CAD版本;
按照用户提供的图纸模板定制成品出图样式。
有一种方式能沟通你我!
在项目中通过图瓦软件的使用,进一步强化设计院的三维设计优势,提高设计质量和效率,增强在市场环境下的竞争力!欢迎广大客户通过电话或者邮件联系图瓦, 热诚期待与您进行软件技术交流和使用。
联系地址:武汉市东湖新技术开发区高新二路286号龙湖光谷城香颂B2栋
企业微信公众号:tuvasoft
电话:027-87788801
市场商务:
联系人:肖经理 电话:15342533263
QQ:37357396 邮件 xt@tuva.cn

| 联系人: | 肖经理 |
|---|---|
| 电话: | 15342533263(微信) |
| 传真: | 027-87788801 |
| Email: | xt@tuva.cn |
| QQ: | 37357396 |
| 微信: | woxtxt |
| 地址: | 武汉市东湖新技术开发区高新二路286号龙湖光谷城香颂B2栋 |
